-
天香藍郡
銷售電話:400 876 0352 轉 0322
開盤日期:2021年08月04日
售樓地址:大同市平城區仁愛路與天和路交匯處西北角(永和佳園北門)
御東 現房尾房 普通住宅教育地產
- 最新動態
- 天香藍郡于5月1日正式交付 歡迎廣大業主回家 [2023-05-04] 天香藍郡4月工程進度新鮮出爐 現尾房出售 ! [2023-04-13] 天香藍郡2月工程進度播報:外立面建設完成! [2023-02-21]
- 樓盤詳情
-
開盤時間2021年08月04日交房時間2023年05月01日付款方式支持一次性付款與商貸,首付30%,全款享97折,貸款享99折。物業類型普通住宅建筑類別小高層 高層裝修狀況毛坯建筑面積38870.54㎡占地面積11051.39㎡住戶數240得房率暫無容積率2.783綠化率35.64%停車位230戶型區間建面約95-144㎡樓棟數量3棟周邊學校小學:大同市平城區文慧小學;中學:大同二中交通路線市區乘坐63路公交車,永和路恒安街口下車,向南150米后向東150米即到。 市區乘坐31、42、64路,政務大廳站下車,沿天和路向南200即到。開發商大同煜眾置業有限公司預售許可(2021)晉商房預售同字第38號物業公司待定物業費待定樓盤介紹
天香藍郡位于大同市平城區恒安街與天和路交匯處西南角,由大同煜眾置業有限公司開發建設,總建筑面積38870.54㎡,總占地面積11051.39㎡,容積率2.783,綠地率35.64%。
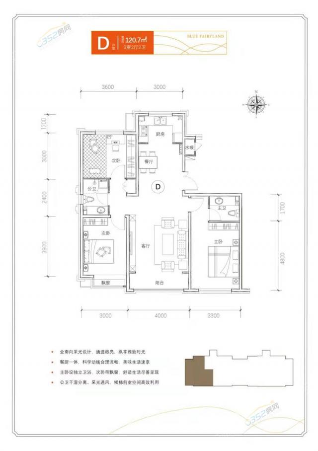
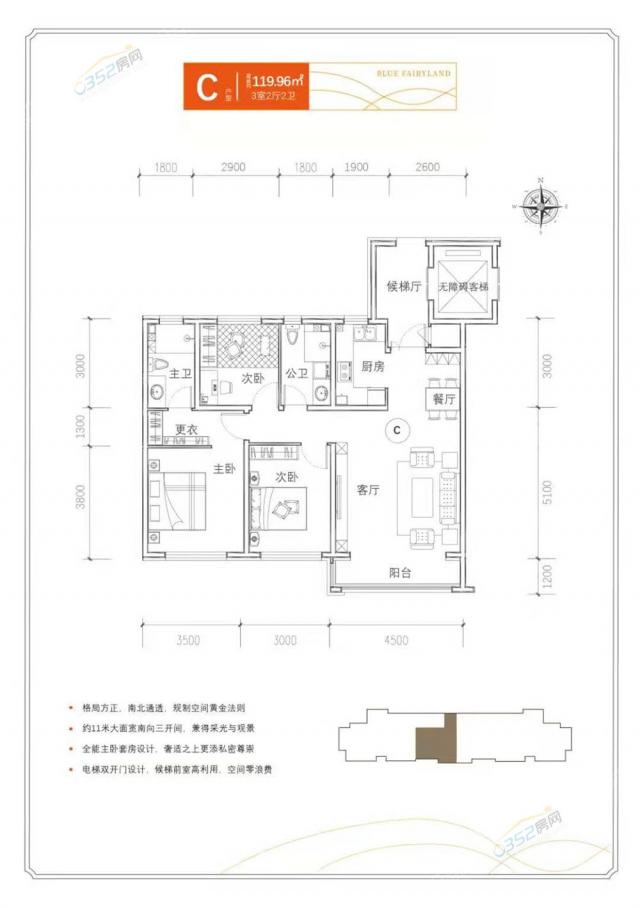
- 主力戶型
-
- 樓盤點評
-
還有好層次嗎游客37個月前
-
今年能交房嗎游客39個月前
-
還有房嗎?戶型多大游客41個月前
展開





