住宅不單單只是有一個窩那么簡單,它下班后的溫暖避風港,平日里放松心情減輕壓力的樂園。家的意義,或許就在這里。如果想要尋找到一個適合自己的住所,遠離喧嘩的宜居樓盤,更是一件不易之事。在這里,碧水云天·御河苑,將給您一個健康、生態、綠色的住宅!【詳情】


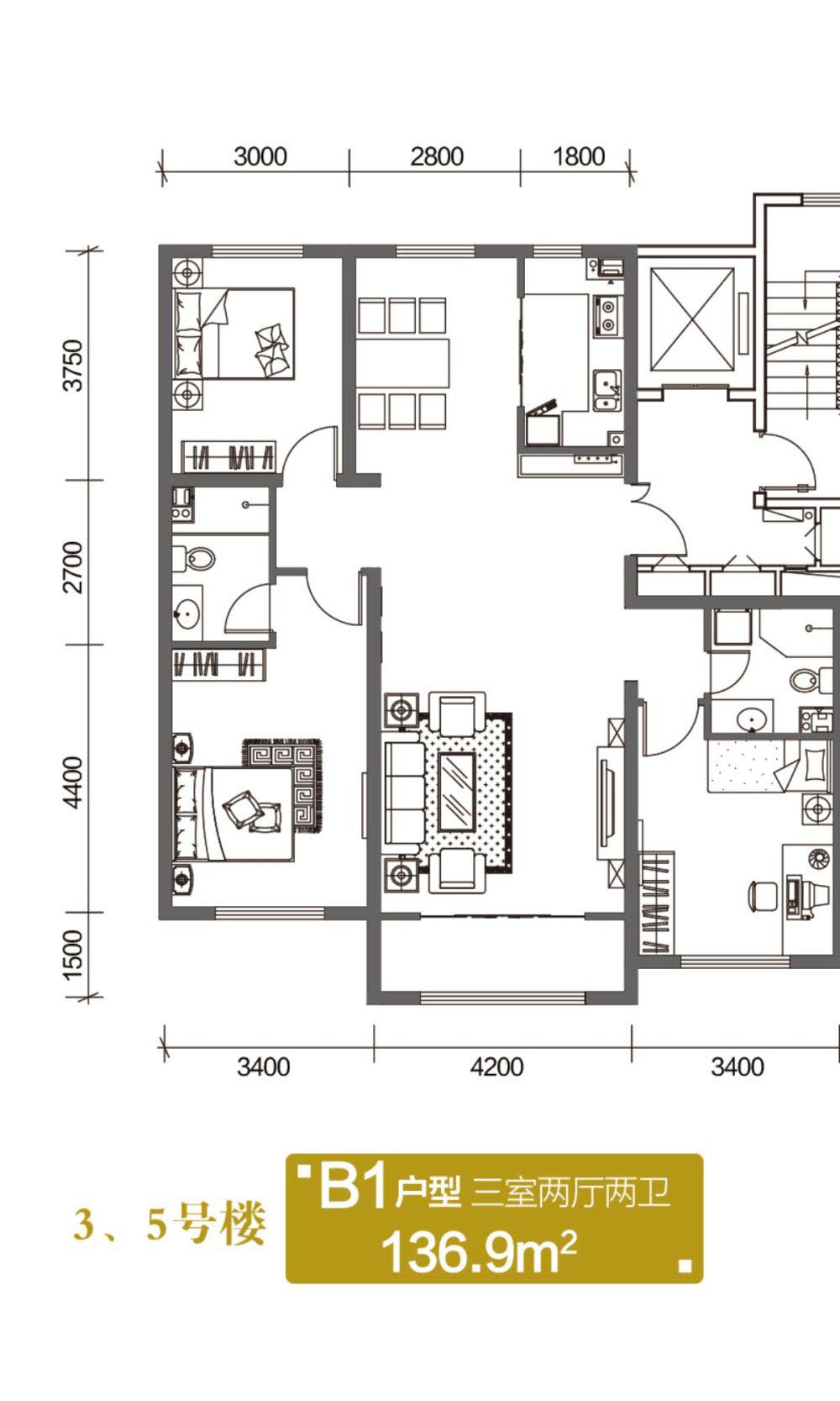
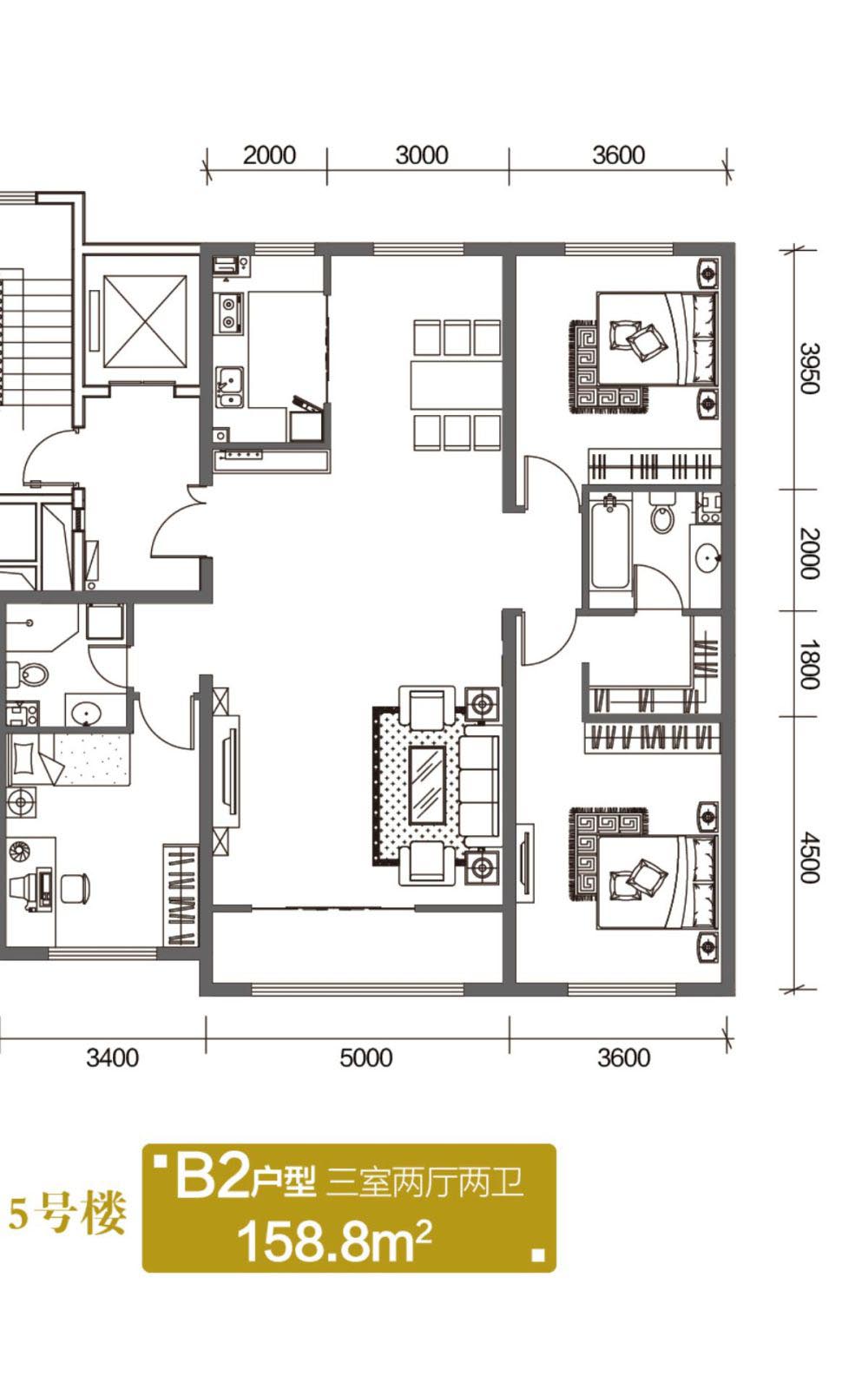
碧水云天·御河苑是碧水云天·御河灣的三期項目用地面積為47616㎡,建筑面積141826㎡。項目共1132戶,容積率2.98,綠化率35%,得房率80%。戶型從88-156㎡之間不等。項目預計建8棟樓,2棟小高層和6棟高層住宅。
【最新動態】