-
碧水云天·御河苑
銷售電話:400 876 0352 轉 0165
開盤日期:2017年10月16日
樓盤地址:大同御東新區永和路與興云街交匯處西北角煤氣公司北側

售樓地址:大同御東新區御河東路與興云街交匯處東南角碧水云天接待中心
御東 現房售完 普通住宅教育地產
- 最新動態
- “家”期已至 碧水云天·御河苑邀您幸福回家 [2018-11-13] 碧水云天·新河灣&御河苑交房在即 邀您前來品鑒 [2018-07-21] 5680元/㎡ 碧水云天·御河苑清盤活動持續升溫 [2018-06-07]
- 樓盤詳情
-
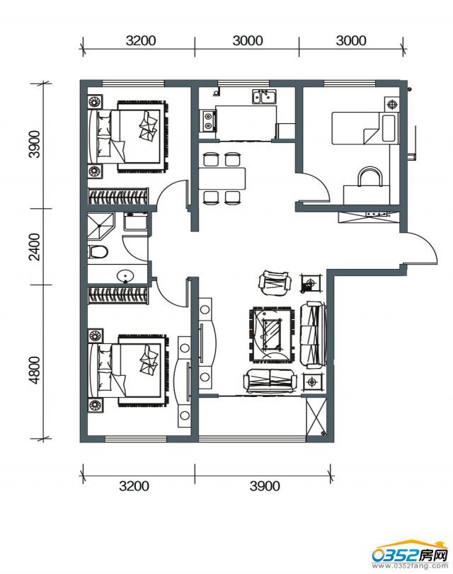
開盤時間2017年10月16日交房時間2018年11月13日(具體交房時間以合同為準)付款方式支持一次性付款、商貸和公積金;一次性付款優惠三個點,商貸、公積金優惠一個點。物業類型普通住宅建筑類別小高層 高層裝修狀況毛坯建筑面積141826㎡占地面積47616㎡住戶數1124戶得房率80%容積率2.98綠化率35%停車位1418戶型區間建面約待定樓棟數量待定周邊學校小學:北岳小學 初中:北師大附中交通路線市區坐63路到曹夫樓社區公交站下車,往西走到十字路口西北角大同市煤運公司北面即到; 市區坐60路到馬家堡社區公交站下車路西即到;開發商大同市嘉達置地實業有限公司預售許可(2017)晉商房預售同字第48號物業公司大同云泉物業管理公司物業費2元/㎡/月(含電梯費)樓盤介紹
碧水云天·御河苑由大同市嘉達置地實業有限公司開發,項目位于御東新區永和路北岳小學南面,項目用地面積為47616㎡,建筑面積141826㎡。項目共1124戶,容積率2.98,綠化率35%,得房率80%。戶型從建面約88-158㎡之間不等。項目共建8棟樓,2棟小高層和6棟高層住宅。
- 主力戶型
-
- 視頻看房
-
- 樓盤相冊
-
- 樓盤點評
-
這個3號樓物業費是怎么算的游客60個月前
-
御河苑有業主群嗎游客75個月前
-
現在有房嗎游客76個月前
展開




