-
天銳華城
銷售電話:400 876 0352 轉 0357
開盤日期:2023年9月17日
售樓地址:平城區云中路天貴酒店一樓
市區 在售期房 普通住宅小戶型投資
- 最新動態
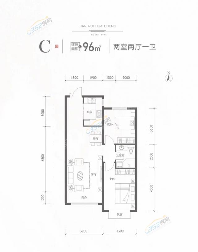
- 天銳華城9月17日正式開盤 參考均價6300元/㎡ [2023-09-18] 天銳華城五證齊全 營銷中心于12日正式開放! [2023-09-12] 天銳華城戶型圖釋放 區間:建面約93-142㎡! [2023-08-20]
- 樓盤詳情
-
開盤時間2023年9月17日交房時間待定(具體交房時間以合同為準)付款方式支持一次性付款,貸款和公積金,首付30%物業類型普通住宅建筑類別多層 小高層 高層裝修狀況毛坯建筑面積523705.76㎡占地面積148147㎡住戶數3231得房率待定容積率2.795綠地率30%停車位3108戶型區間建面約93-142㎡樓棟數量26棟周邊學校待定交通路線乘坐17路公交,楊樹局(臨時站)下車即到; 乘坐65路公交,北都街振華路口下車即到;開發商大同銳龍房地產開發有限責任公司預售許可(2023)晉商房預售同字第27號物業公司待定物業費待定樓盤介紹
天銳華城,位于大同市平城區北都街南側、振華路東側,由大同市銳龍房地產開發有限公司開發,項目總占地面積約148147㎡,總建筑面積約523705.76㎡,容積率2.795.
- 主力戶型
-
- 樓盤點評
-
施工挺快的!我看還有洋房~游客21個月前
-
天銳的物業太差了,不敢買游客22個月前
-
天銳的物業真的不行,后期都是坑游客24個月前
展開





