-
天銳華城戶型圖釋放 區間:建面約93-142㎡!
2023-08-20 16:34:57 1002 RUI 0 -
天銳華城預售許可證信息:
(2023)晉商房預售同字第27號本頁面的預售許可證信息僅供參考。
摘要:天銳華城,城市展廳開放,戶型圖釋放,區間:建面約93-412㎡,以三居室和兩居室為主。
咨詢電話:400 876 0352 轉 0357
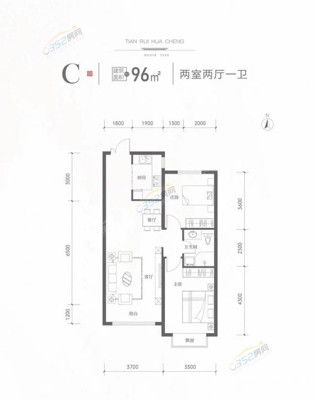
以下是天銳華城部分戶型圖

C戶型圖

D戶型圖
目前,天銳華城戶型圖和效果圖出爐,開盤時間及價格待定,城市展廳已開放,購房者可前往平城區云中路天貴酒店一樓咨詢品鑒。
- 相關樓盤
-
天銳華城
6300元/m²
大同市平城區北都南側,振華路東側
市區普通住宅在售,期房
- 天銳華城 相關資訊
- 相關資訊
- 資訊排行
