-
碧水云天·頤園二期
銷售電話:400 876 0352 轉 0263
開盤日期:待定
售樓地址:大同市友誼街與南環路交匯處西北角
市區 在售現房 普通住宅教育地產
- 最新動態
- 碧水云天·頤園二期五證齊全 均價8300元/㎡! [2023-04-08] 建設基本完成 碧水云天·頤園二期即將正式交房 [2022-06-23] 碧水云天·頤園二期北側圍擋已拆 建設進入尾聲 [2022-05-26]
- 樓盤詳情
-
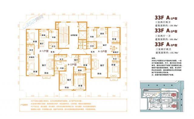
開盤時間待定交房時間2022年12月30日(具體交房時間以合同為準)付款方式支持一次性付款,商業貸款和公積金;全款97折,貸款99折。物業類型普通住宅建筑類別小高層 高層裝修狀況毛坯建筑面積待定占地面積待定住戶數400得房率待定容積率待定綠化率35%停車位待定戶型區間建面約108-156㎡樓棟數量4棟周邊學校中學:大同一中 小學:平城區45校交通路線市區乘坐201路、35路公交車在向陽街友誼街口下車即到。開發商大同華瑞房地產開發有限公司預售許可(2023)晉商房預售同字第12號物業公司大同云泉物業管理公司物業費待定樓盤介紹
碧水云天·頤園二期項目位于大同市向陽東街與友誼街交匯處西南角,共建4棟住宅樓,包括高層與小高層,戶型建面約108-156㎡。
- 主力戶型
-
- 樓盤點評
-
還有多大平米游客11個月前
-
還有房么游客21個月前
-
還有房嗎游客30個月前
展開




