手機看文章
摘要:本周0352房網·壹周樓市(2021.7.12.-2021.7.18),從樓市動態、工程進度、城建規劃、土地市場等方面,為大家網羅過去一周的大同樓市熱點!
一、樓市動態

實景圖
7月17日,省內多名建筑專家學習參觀瑞湖·云山府。

現場圖
7月17日,鉑藍五龍巷二期瓏吟示范區開放。

現場圖
7月17日,保利于南城墻廣場舉辦品牌發布會。

現場圖
7月17日,五州帝景·學府里6#、7#雙樓棟封頂。

實景圖
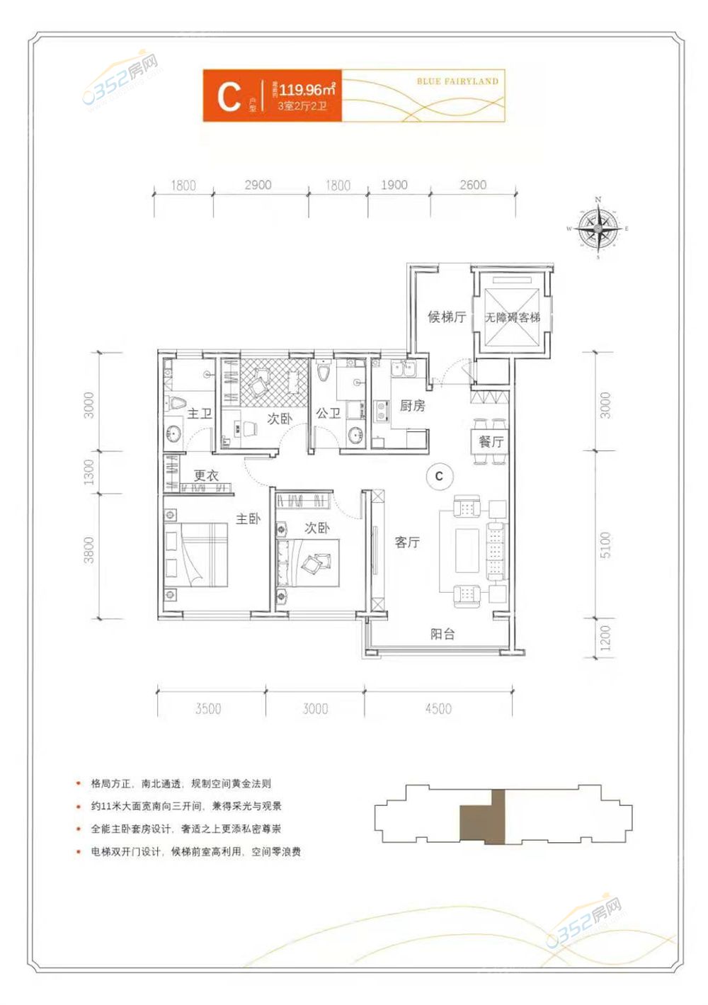
7月18日,天香·藍郡戶型圖釋放,項目開啟認籌。

戶型圖
二、400來電排行
400電話來電量排名:
開源·金懋府
文瀛御龍庭
文興首席·竹里
前進新苑·芳華悅
伯益公園府
以上五個樓盤是上周400來電量的前五名樓盤。開源·金懋府建設正酣,進度喜人,網友關注較高,來電量排行第一;文瀛御龍庭正式開售,來電量排行第二;文興首席·竹里正式開售,來電量排行第三;前進新苑·芳華悅在城西樓盤中建設進度較快,網友較為關注,來電量排行第四;伯益公園府近同煤快線,來電量排行第五。
三、工程進度
截止至7月13日,恒大悅府一期部分樓棟正在進行外立面施工,二期北側部分樓棟已封頂,其余樓棟最高建至21層左右。


實景圖
截止至7月13日,泰和芮府北側樓棟已封頂,二次結構施工中。

實景圖
截止至7月13日,九如花園窗體安裝中,小區東大門施工中。

實景圖
四、城建規劃
內容:本次云岡區擬征收地塊位于北同蒲鐵路東側,涉及云岡區西韓嶺鄉東韓嶺村、東肖河村、小太村,口泉鄉落里灣村2個鄉鎮4個行政村,總面積約66.2471公頃。

地塊大致位置
總面積超1000畝!大同云州區將迎來大規模征地
內容:總面積超1000畝,大同云州區倍加造鎮等六宗地塊即將迎來土地征收,用作公共管理與公共服務用地、居住用地、加油站用地等,具體內容如下。

擬征收土地情況一覽

大致位置示意圖
五、全國樓市
為何限高? 專家:高樓背后的“代價”不容忽視
國家發展改革委日前發布的《關于加強基礎設施建設項目管理 確保工程安全質量的通知》明確提出,嚴格限制新建250米以上建筑,確需建設的,要結合消防等專題論證進行建筑方案審查,并報住房城鄉建設部備案;不得新建500米以上超高層建筑。
7月13日,國務院新聞辦公室舉辦2021年上半年金融統計數據新聞發布會,上游新聞記者從發布會上獲悉,2021年上半年進一步完善了房地產金融調控機制,未來央行將繼續圍繞穩地價、穩房價、穩預期,構建房地產金融調控長效機制。
易居研究院智庫中心7月13日發布最新數據顯示,2021年上半年,北京新建商品住宅成交面積為476萬平方米,同比增長123%;二手住宅成交套數為110597套,同比增長65%。