手機看文章
摘要:本周0352房網·壹周樓市(2022.9.19-2022.9.25),從樓市動態、工程進度、城建規劃、土地市場等方面,為大家網羅過去一周的大同樓市熱點!
一、樓市動態

現場圖

9月24日,同瑞里公寓正式開盤。

現場圖
二、400來電排行
碧水云天蘭溪苑
茉莉公館
同瑞里
以上五個樓盤是上周400來電量的前五名樓盤。碧水云天蘭溪苑開盤籌備中,網友較為關注,來電量排行第一;茉莉公館正式開盤,來電量排行第二;同瑞里公寓正式開盤,來電量排行第三;東方家園二期開啟認籌,網友咨詢較多,來電量排行第四;學林壹號部分洋房建設封頂,近期熱度較高,來電量排行第五。
三、工程進度
9月20日,五州帝景學府里部分樓棟外立面施工。

實景圖
9月20日,桐城新林御園部分封頂樓棟窗框安裝中。

實景圖
9月25日,御水康城部分樓棟安裝窗框。

實景圖
四、城建規劃
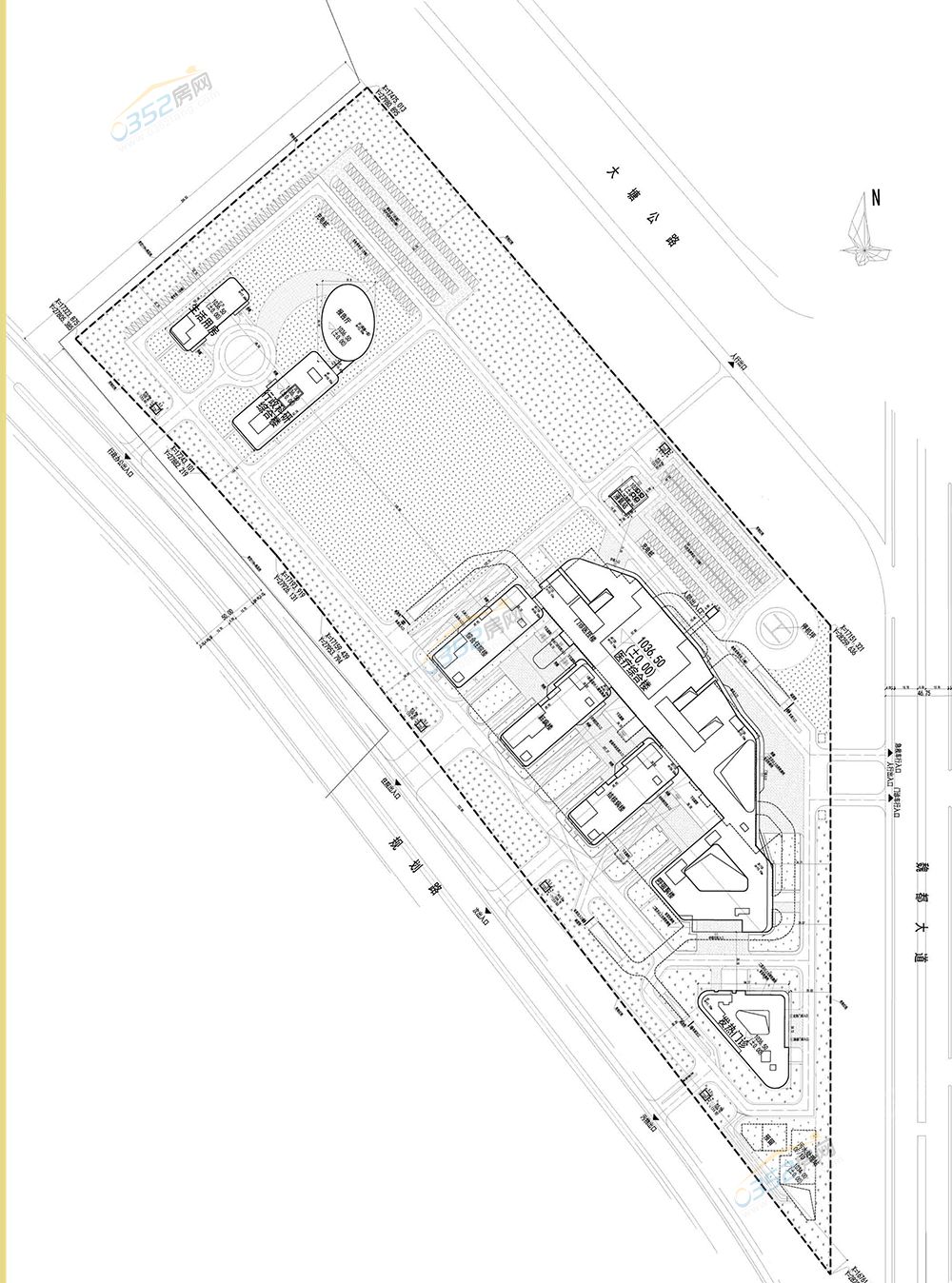
大同市第四人民醫院(傳染病醫院)項目

建設項目規劃許可公示牌

平面布置圖


效果圖

位置圖
大同經濟技術開發區汽車技術綜合研發項目

規劃圖
礦山機械智能制造及維修改造項目

規劃圖
煤質活性炭建設項目

規劃圖
自動化智能流水線項目

規劃圖

位置圖
大同高鐵消防站項目

項目選址
大同市人民政府關于新建大慶路快速路(同泉路-慶新路)
道路建設工程項目房屋征收補償方案
征收范圍:西起時莊橋東,東至國家電網口泉供電局,長1.59公里,實施寬度51米-77米。
征收時間:2022年10月21日至2022年11月20日。
積德益-非遺產品-糕點類加工制作項目

規劃公示圖

平面規劃圖
建設項目規劃選址公示牌
編號:同規選(市政)公示字【2022011】號

選址公示
大同市平城區人民政府土地征收啟動公告
平城征啟公告[2022] 3號

擬征收土地的位置、范圍、權屬
五、土地市場
大同市規劃和自然資源局開發區分局國有土地使用權掛牌出讓公告
(同自然資開告字[2022]16號)

時間:2022年10月04日08時00分 至 2022年10月13日09時00分
地點:大同市規劃和自然資源局開發區分局一樓
以上就是本周0352房網·壹周樓市(2022.9.19-2022.9.25)的全部內容啦,讓我們下周同一時間再會!