大同二中集團校規劃有新變化 最新方案公示!
發布時間:2019-03-04 來源:大同城鄉規劃局 編輯:Rui
手機看文章
摘要:自從2019年大同二中集團校建設的消息傳來,廣大市民一直十分關心其建設情況。近日,大同二中集團校項目建設規劃又有新變化,快來一睹為快吧!
大同市二中集團校新建項目位于大同市御東新區恒源路東側,總用地面積73877㎡,共分兩期進行建設。目前,大同二中集團校新建項目一期規劃出爐,本次調整規劃的也是一期項目。

大同二中集團校控規圖
據小編從大同市城鄉規劃局了解到,本次規劃調整的原因為:2018年8月1日實施《建筑防排煙系統技術標準》規范對原方案影響較多,因增加排煙與新風機房及對非機動車停車位產生影響,因此增加了地下非機動車庫面積,減小原地上建筑面積,并調整新版總平面規劃圖。以下是大同二中集團校一期新建項目規劃調整的具體情況:

大同二中集團校調整參數

原規劃總平面布置圖

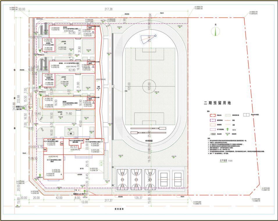
新規劃總平面布置圖
以上就是大同二中集團校一期新建項目規劃調整情況,小編會時刻關注大同二中集團校的建設情況,為廣大網友帶來最新的報道,敬請關注!