手機看文章
摘要:據相關網站公告,大同多處城建規劃已批復,含云州區職教城、御河濕地公園商業等重點項目,詳情整理如下。
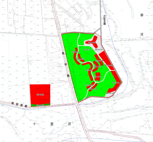
關于《大同市御河十里河交匯處西北側片區控制性詳細規劃》等控規批復的公告
《大同市御河十里河交匯處西北側片區控制性詳細規劃》等5個控規經大同市人民政府批復同意,現公告如下:
一、《大同市御河十里河交匯處西北側片區控制性詳細規劃》

控制性詳細規劃

主要地塊控制指標
該控規于2022年10月8日經大同市人民政府批準同意(同政函【2022】136號)。
公示相關鏈接:新建公園商業廣場 大同御河十里河交匯片區發展
二、《大同市中心城區YG-07單元P街坊02和07地塊控制性詳細規劃用地調整》

控制性詳細規劃

主要地塊控制指標
該控規于2022年10月8日經大同市人民政府批準同意(同政函【2022】136號)。
公示相關鏈接:新增公園綠地、文化用地 大同有地塊控規調整
三、《大同市中心城區YG-02單元B街坊01、02地塊控制性詳細規劃用地調整》

控制性詳細規劃

主要地塊控制指標
該控規于2022年10月8日經大同市人民政府批準同意(同政函【2022】136號)。

規劃原公示
四、《大同市中心城區YX-04單元H-07、H-08地塊控制性詳細規劃》

控制性詳細規劃

主要地塊控制指標
該控規于2022年10月8日經大同市人民政府批準同意(同政函【2022】136號)。
公示相關鏈接:約40800㎡!大同濱河路與御河間新增公園綠地
五、《大同市中心城區YD-13單元B街坊01至06地塊控制性詳細規劃》

控制性詳細規劃

主要地塊控制指標表
該控規于2022年10月8日經大同市人民政府批準同意(同政函【2022】136號)。
公示相關鏈接:多宗地塊控規調整!大同云州區將創建職教城