大同第二個大潤發—南環路店 建設規劃已公示
發布時間:2023-09-25 來源:大同政府網 編輯:RUI
手機看文章
摘要:大同第二個大潤發真的要來啦!大潤發—大同南環路店項目建設規劃公示,效果圖出爐,具體情況來一睹為快!
大潤發-大同南環路店項目
設計單位:中外建工程設計與顧問有限公司
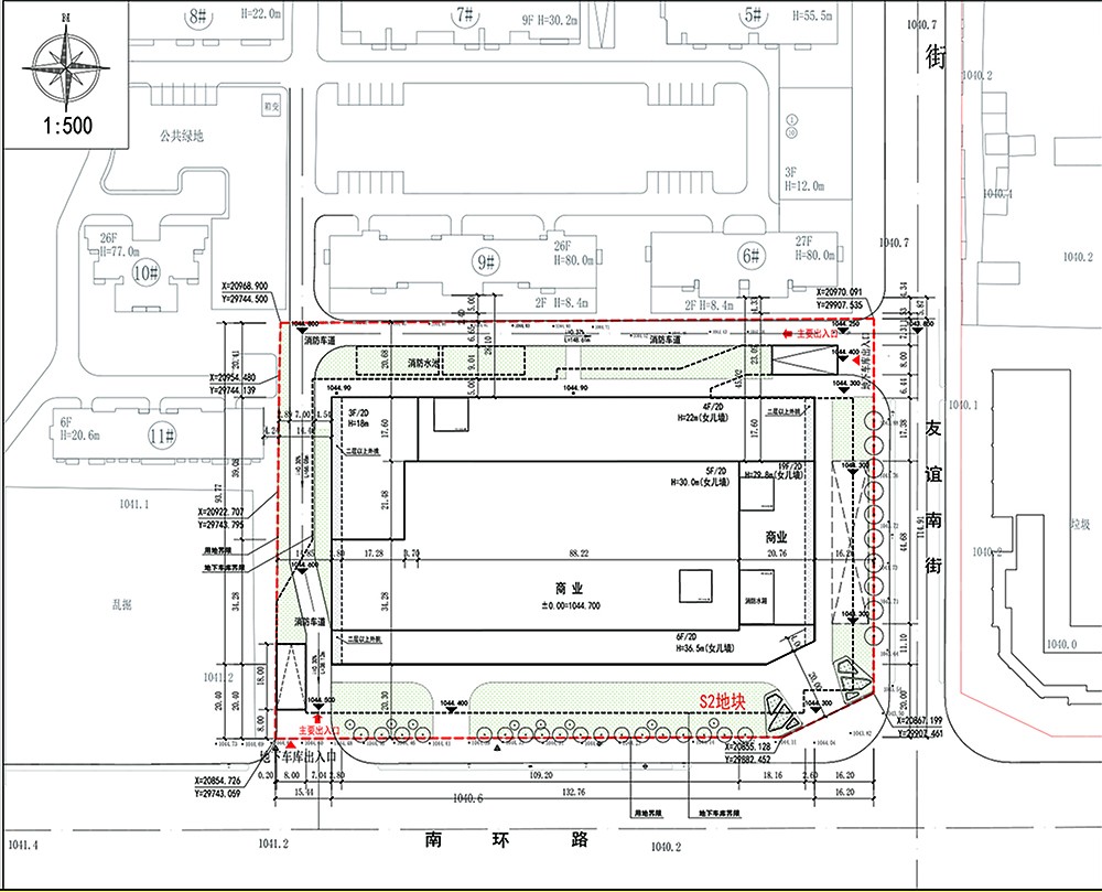
項目位置:大同市平城區南環路北側、友誼街西側

平面布置圖
綜合技術指標
建設宗用地面積:18610㎡
總建筑面積:86764.76㎡
地上建筑面積:59804.71㎡
地下建筑面積:26960.05㎡
建筑密度:49.98%
容積率:3.22
綠地率:20%
停車位:605輛(地下)


效果圖

位置示意圖
以上就是大潤發—大同南環路項目建筑規劃啦!這是大同第二個大潤發超市,待建成之后,將會滿足周邊居民的日常購物需要,0352房網也將持續關注項目進展,敬請期待!