御東新區新建兩所小學 項目建設規劃許可已公示
發布時間:2024-06-11 來源:大同政府網 編輯:栗子
手機看文章
摘要:為了滿足御東片區周邊居民適齡兒童的入學需求以及解決入學難的問題,御東新區規劃建設兩所小學,現項目建設規劃許可已公示,具體情況來一睹為快吧!
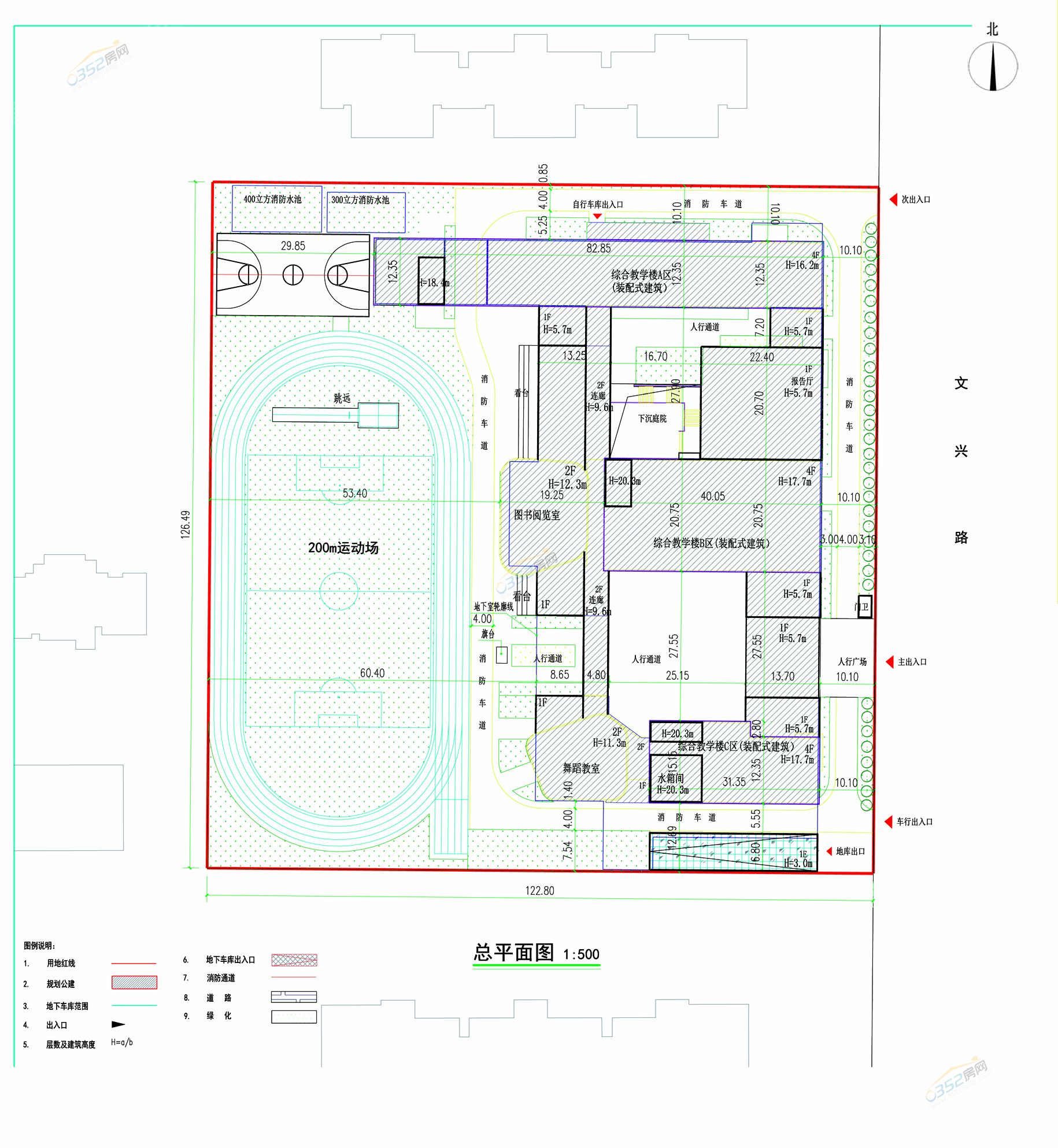
項目名稱:新建規劃小學3建設項目
建設單位:大同市教育局
設計單位:大同市建筑設計研究院集團有限公司
項目位置:文興路西側
規劃總用地:15533.0平方米
總建筑面積:18086.42平方米
地上建筑面積:12357.15平方米
地下建筑面積:5729.27平方米
地下計容面積:995.42平方米
建筑密度:27.55%
容積率:0.86
綠地率:35%
總停車位:51輛
軌制:6軌

平面圖


效果圖
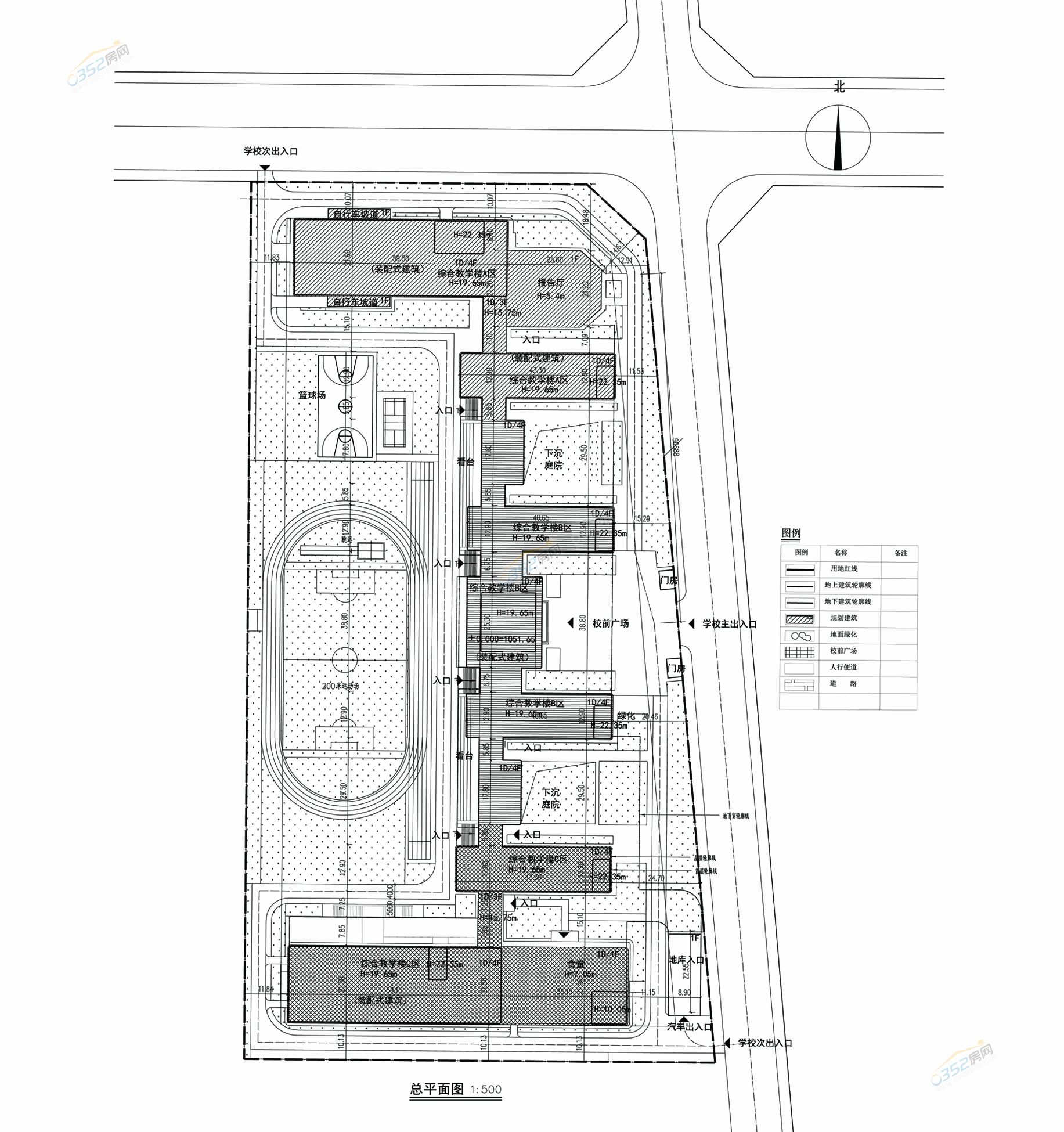
項目名稱:新建規劃小學4建設項目
建設單位:大同市教育局
設計單位:大同市建筑設計研究院集團有限公司
項目位置:二中集團校北側
規劃總用地:28814平方米
總建筑面積:36065.98平方米
地上建筑面積:25487.21平方米
地下建筑面積:10578.77平方米
建筑密度:26.30%
容積率:0.88
綠地率:35.0%
總停車位:103輛
規制:12規

平面圖


效果圖
隨著大同御東新區樓盤交付數量增多,各小區適齡入學兒童數量增多,兩所規劃小學的建設,將有效緩解適齡兒童入園難的難題,完善御東新區教育配套。
關于更多大同城建規劃的信息,0352房網將持續播報,敬請關注!