市區迎賓佳苑住宅小區建設項目規劃許可公示
發布時間:2019-05-24 來源:0352房網 編輯:謝明亮
手機看文章
永泰學府(迎賓佳苑)預售許可證信息:(2020)晉商房預售同字第21號
本頁面的預售許可證信息為當前信息發布時所展示,僅供參考。最新信息請前往樓盤主頁查看。
摘要:市區又有新樓盤了,迎賓佳苑住宅小區建設項目規劃許可公示了,快來了解一下吧!
咨詢電話:400 876 0352 轉 0000

項目公示
項目名稱:迎賓佳苑住宅小區建設項目
設計單位:大同市規劃設計院
項目位置:迎賓街西側
占地面積:62801㎡
建筑面積:273577㎡
建筑密度:26.3%
容積率:3.47
綠地率:30.1%
停車位:2180
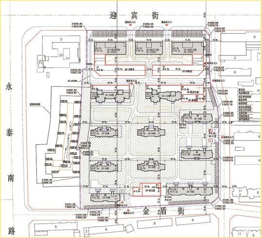
以下是迎賓佳苑住宅項目規劃總平面布置圖和日照平面等時線圖:

項目規劃總平面布置圖

日照平面等時線圖
以上就是迎賓佳苑住宅小區的所有內容,更多樓盤信息小編將會持續報道,敬請關注0352房網!