手機看文章
摘要:對于現在的購房者來說,好房子不僅體現在良好的地理位置與醇熟的配套,戶型的設計也尤為重要。
咨詢電話:400 876 0352 轉 0343
睿和云端6月18日開啟誠意登記,全城啟動,誠邀您來品鑒!




實景圖
一所房子代表著一個家,在這個喧擾的世界上,是我們給家人溫暖安定的承諾,在影響居住舒適度、房產價值等因素中,戶型是較為重要的因素之一,那些兼顧功能和舒適體驗的戶型,勢必受到大同購房者的追捧。

項目戶型圖
睿和云端深研大同品質客群的需求,對空間應用所帶來的居住體驗進行反復測試調整,匠心打造每個不同的戶型,此次主要介紹建面約125㎡、143㎡、158㎡的三居戶型,以“舒適”為空間營造的至高法則,打造大同市民心目中的理想之家。

項目效果圖
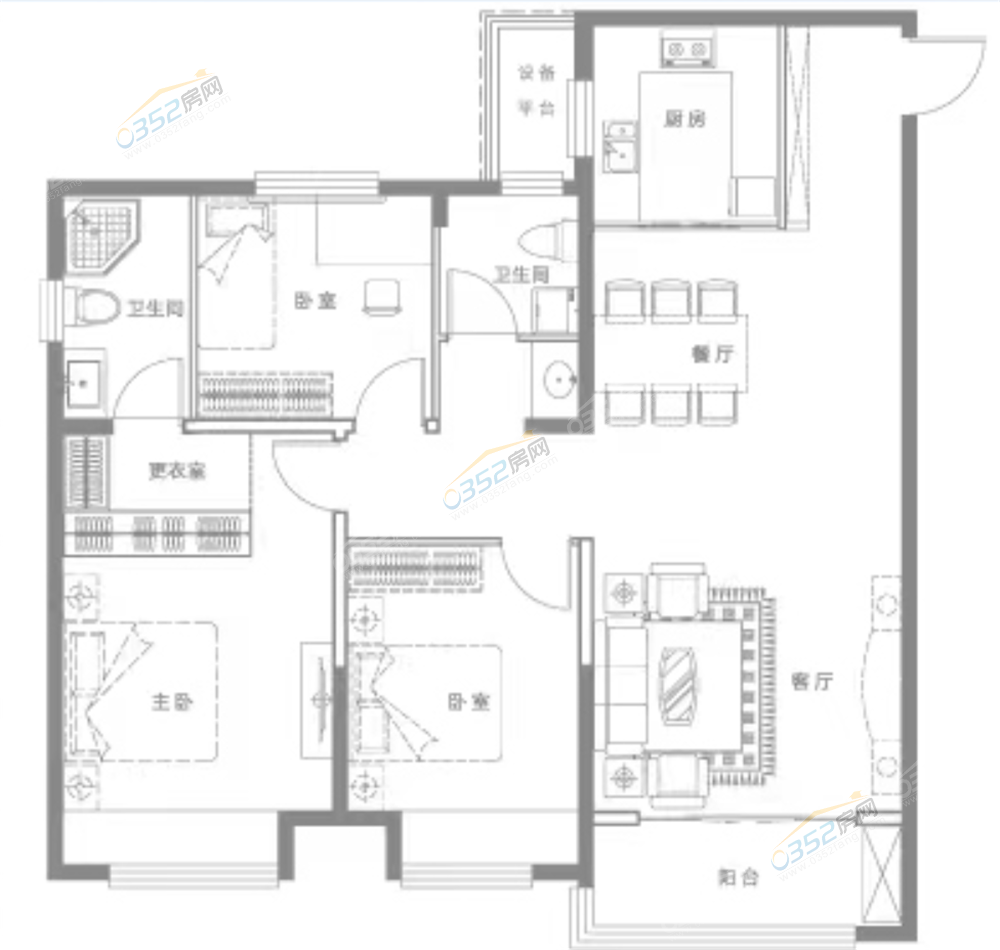
建面約125㎡戶型南北通透設計,陽光和清風引入居室,全明方正戶型,舒展自在生活。雙廳一體,布局合理,客廳餐廳精致一體,既能營造闊綽空間感,又能凸顯合理布局,便捷實用。獨立書房,涵養逸趣,獨立書房設計,書香彌漫滿屋,滿足主人優雅品味。

項目戶型圖
建面約143㎡戶型空間布局考究,分寸必用,讓居家生活輕松自怡,客餐廳相連,空間闊綽無遮擋,通風順暢與自然氣息零距離接觸。主人房享獨立衣帽間、衛浴及落地窗,主臥大開間,獨立衛浴,滿足主人居家私密性。

項目戶型圖
建面約158㎡戶型,全明氣派戶型,室內陽光流連、清風婉轉。寬闊橫廳,大家風范,客廳與餐廳暢達相連,闊綽空間感,格局方正嚴謹,彰顯大家風范。U型廚房,美味盡享,U型廚房設計,料理生活更加自如,沐浴陽光中,生活色彩不再奢侈。舒適主臥,享愜意生活,主臥增設獨立干濕分離衛生間、步入式衣帽間,盡享快意人生。

項目戶型圖
空間是生活的容器,源于對生活的理解。合理尺度的空間布局,可營造出與眾不同的生活舒適感。睿和云端精研品質戶型,歷經無數次方寸之間的細致打磨,勾勒出遠見時代的空間格局。
營銷中心地址:大同市平城區御河東路與恒安街交匯東南角。

項目區位圖