御東住宅項目觀瀾灣 戶型已出售樓部已開放!
發布時間:2021-07-05 來源:0352房網 編輯:鄭倩
手機看文章
觀瀾灣預售許可證信息:(2022)晉商房預售同經開區字第1號
本頁面的預售許可證信息為當前信息發布時所展示,僅供參考。最新信息請前往樓盤主頁查看。
摘要:御東文瀛湖以南住宅項目觀瀾灣,現戶型已出,臨時售樓部已開放,快來和小編一起了解一下吧!
咨詢電話:400 876 0352 轉 0000
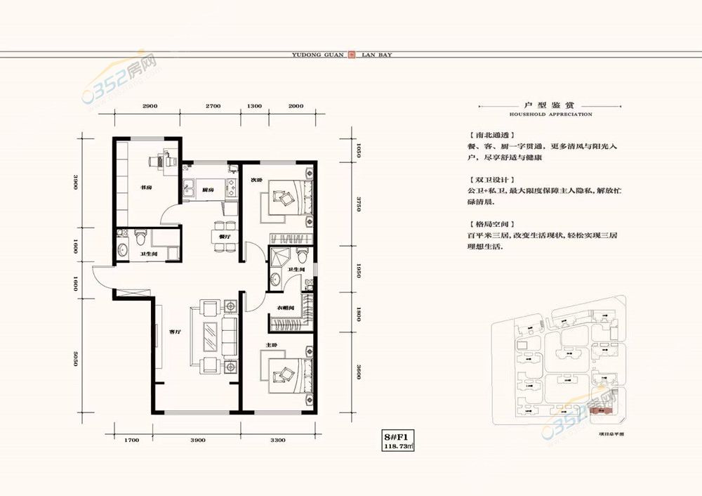
據小編了解,觀瀾灣臨時售樓部已在項目周邊設立開放,戶型圖已到位,以下是部分效果圖與戶型圖:

效果圖

戶型圖
觀瀾灣位于大同市南環路與柳鶯路交匯處東南角,由大同東騰房地產開發有限公司開發建設。項目總占地面積66106.67㎡,總建筑面積185755㎡,綠地率35.1%,容積率2.18。更多樓盤信息,敬請關注0352房網!