[太和鉑悅城]建設項目規劃許可公示現已出爐
發布時間:2021-07-21 來源:0352房網 編輯:鄭倩
手機看文章
鉑悅城預售許可證信息:(2022)晉商房預售同字第24號
本頁面的預售許可證信息為當前信息發布時所展示,僅供參考。最新信息請前往樓盤主頁查看。
摘要:近日大同御東北側住宅項目——太和鉑悅城建設項目規劃許可公示出爐,更多信息得以釋放,詳情如下。
咨詢電話:400 876 0352 轉 0235

項目規劃公示牌
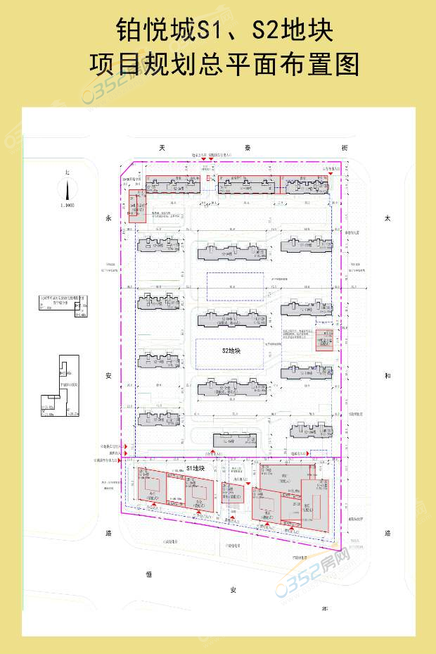
項目名稱:鉑悅城S1、S2地塊建設項目
項目位置:恒安街北側、太和路西側
S2地塊占地面積:82968.54平方米
S2地塊建筑面積:205246.44平方米
S2地塊容積率:1.59
S2地塊綠化率:35.1%
S2地塊總停車位:1302輛

項目總平面布置圖

項目位置圖
以上就是太和鉑悅城的項目規劃建設了,我們可以從此次公示中看到,S2地塊容積率為1.59,目測太和鉑悅城將以小高層為主要建筑類型,而作為商業用地的S1地塊,目測也將建造太和鉑悅城的配套臨街商業。
據小編近日實地考察發現,截止至7月20日,太和鉑悅城圍擋已圍土地平整中,正待下一步動作。更多太和鉑悅城相關信息,敬請關注0352房網!