手機看文章
摘要:近兩年來,一些著急買房的購房者好像突然銷聲匿跡了,很多買房人表示大同樓市這兩年讓人琢磨不透,在這種形勢下,大家都想選擇那些有品質的好房子,這說明大同人買房邏輯開始變了。
今天,小編就從地段、需求、產品三個維度,深扒一下大同人置業邏輯。
一、看地段
在大同,買房選地段,最重要的其實就是挑對位置!這說起來簡單,但操作起來確實也有一定的技術難度。我們在挑位置的時候,首推的邏輯是:
優先選擇距離自己工作、生活圈近的位置,再去考慮配套是否成熟,或是這個地段有沒有發展潛力。為什么要這么選?房子,總歸還是拿來住的。哪個區域距離你穩定工作的地方更近,那么哪個地方就更適合你。試想一下,如果你上班的地方在云岡區,家卻住在御東,無形之中時間成本增加了不少。

大同實景圖
如果想買御東,那置業邏輯就可能是這樣的:手里資金較為充足,對周邊配套氛圍有較高要求,看重周邊的教育資源。
近幾年,大同樓市供不應求狀況逐漸被改善,云州區碧桂園·玖瓏灣、保利和光塵樾、星玥灣等項目均有房源在售;御東錦瑞和源、四季、太和道等項目在售;市區觀城壹號、楓林逸景親河園、碧桂園鳳棲臺等項目在售;云岡區陽光·十里河畔、學府華庭、星湖世家·錦園等項目也在銷售階段。
從樓盤供應來看,不同片區均有新樓盤供應或待入市樓盤,不同區域置業者的選擇也相對較大。在實際選擇過程中,哪個區塊置業邏輯與你匹配,基本上你就會有答案了。
二、看需求
論需求,可以分成自住和投資兩種,自住又可以分為剛需和改善兩類。在“房住不炒”背景下,投資這一需求就不再贅述,我們主要來看看大同購房在自住方面的需求邏輯。
剛需買房邏輯:既然是剛需,那首先要考慮的就是預算,再去看周邊的配套和交通等。需要注意的是,部分剛需也會考慮一些周邊學校等實際需求,未來可能還有換房需求,這就需要對板塊內的學校和價值增長空間有一定的了解和判斷。

大同南站實景圖
改善買房邏輯:地段、品質和環境,這是改善人群對房子的三大基本要求。這幾年在大同,低密、洋房、大平層或疊墅,這些都是改善的置業熱點。
改善需求涵蓋了周邊環境、項目規劃、景觀、戶型、質量、品質、用材、物業服務、口碑等等多個維度,是需要全方位去選擇判斷的。


園林實景圖
之前很多人都在說:大同人買房的邏輯改變了,那么到底變了什么呢?其實就是從剛需到改善的轉變。
三、看產品
近年來,大同購房者不再一路追漲,開發商也不再只是一味鼓吹板塊未來空間,大家都把目光聚焦到了項目的品質上。為了贏得更多的市場,大同眾多房企在戶型產品設計上也更加以人為本,以客戶的需求為導向研發設計,增加戶型產品的適應性、可變性和選擇性。
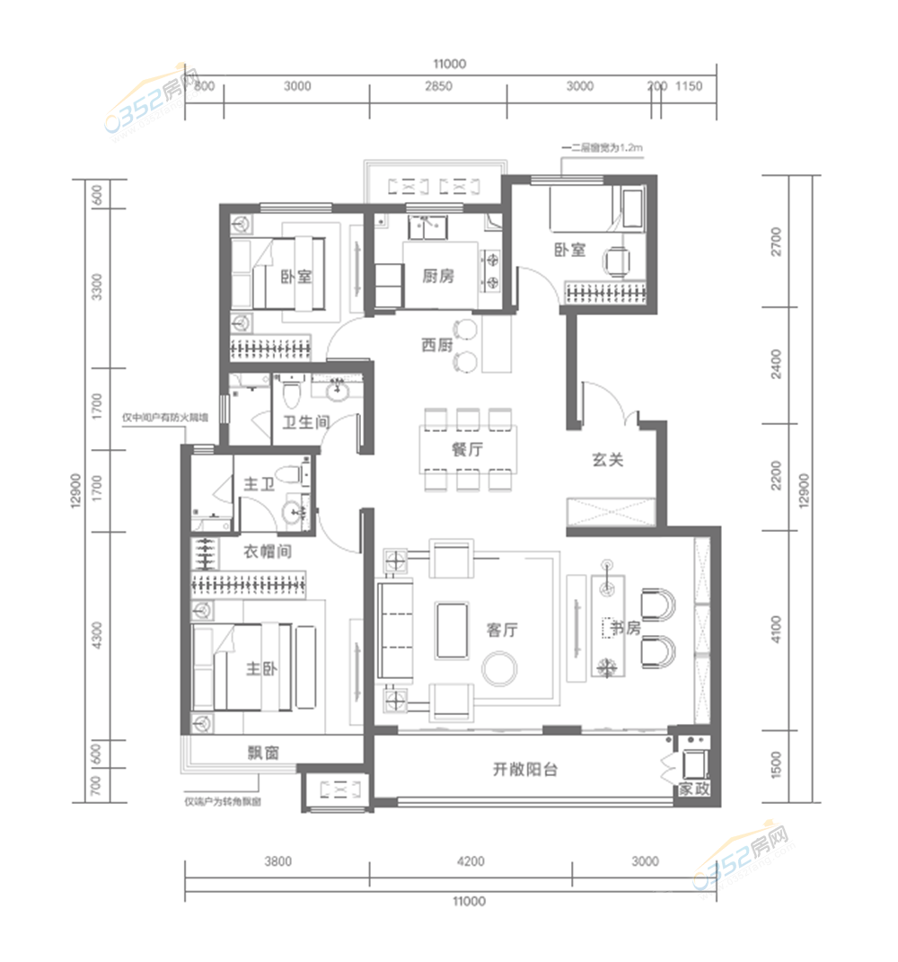
如某樓盤建面約133㎡及以上面積戶型均采用了三合一大橫廳設計,這在目前的大同樓市中屬實不多見,以建面約133㎡戶型為例:

建面約133㎡戶型圖
在這個戶型中,我們會驚喜地發現,空間更開闊,獨有的客廳、餐廳、書房三合一大廳,給空間更多的可能性,橫廳設計可以把走道空間納入到客廳和餐廳空間中,提高戶型的使用率,帶來前所未有的生活體驗。
整個戶型大面寬,短進深,符合我們大同老百姓常說的“戶型方正、南北通透、橫廳布局”這一標準好戶型原則。放眼當今的大同樓市,從開發商品牌到戶型結構,只有真正的品質住宅值得買房人放心購買。
最后小編想說,大同樓市一直在變化,買房邏輯也一直在更新,需求不同,買房的關注點當然也不一樣。但是,大家都在盡自己最大的能力,給自己一個滿意的答復,不跟風,不盲從,清楚自己需要什么才能買到心儀的房子!